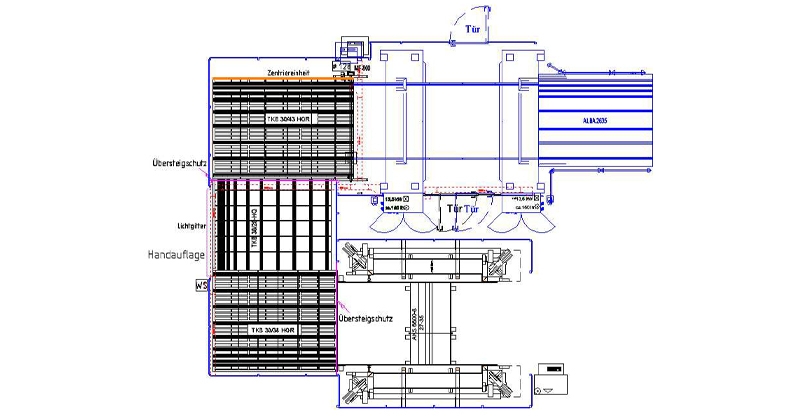
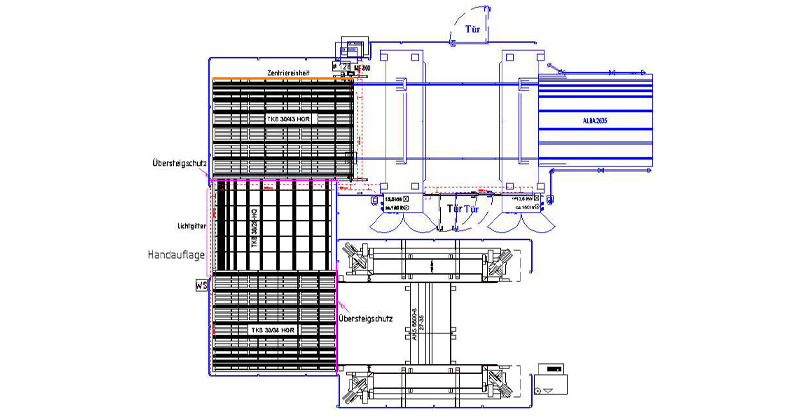
U-образна линия

Направете запитване

Защита от СПАМ

Описание

По-висока производителност чрез по-кратки цикли!

Нямате много място и се нуждаете от най-доброто възможно решение за увеличаване на производствения Ви обем? Тогава е време да Ви информираме за нашата усъвършенствана и ефикасна U-образна концепция за линия, която е гаранция за увеличаване на производството във Вашия завод. Очакваме с нетърпение диалога и сътрудничеството, които ще проведем с Вас.

Акценти

  • Адаптирана към местните условия
  • Компактно разположение
  • Охлаждане и буферна система TKB, интегрирани в линията, въпреки много късата обща дължина.
  • Съществува възможност за ръчно зареждане
  • Ефективна работа на линията - един работник може да управлява както заваръчната машина, така и машината за почистване на ъгли.
  • Линията може да се разшири